Projekt

Bungalow blev til moderne funkis i to etager

Funkisvilla
  • Flere rum
  • Optimal udnyttelse af dagslys
  • Optimal udnyttelse af m2

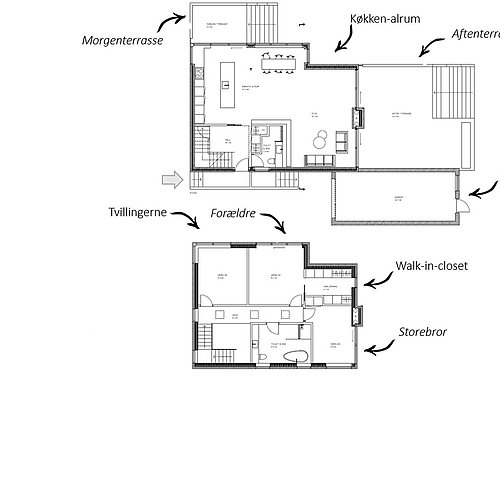
En nedslidt bungalow i ét plan voksede til en moderne funkisvilla i to etager. Den himmelstræbende idé har skabt masser af lysindfald og fine kig ud over landskabet.

Da Jesper og Annette Bach overtog den nedslidte bungalow var planen at bygge til i længden. Men en dag kom arkitekten forbi, og han kravlede op på taget og fik her en idé til en helt anden slags udvidelse: At bygge ovenpå. Her ville familien nemlig få den smukkeste udsigt over området i forstaden Åbyhøj vest for Aarhus. Der var dog et problem: Ideen harmonerede ikke helt med byggereglerne. Men her fik Jesper og Annette Bach god hjælp fra arkitekten, der kunne bistå dem i forhandlingerne med kommunen, som endte med, at de fik dispensation.

Resultatet i dag taler for sig selv. Den lille, slidte bungalow er blevet til en hvid funkisdrøm. Ved at bygge ovenpå i stedet for udad har familien desuden fået mere plads i haven til både morgen- og aftenterrasser, og indendørs giver de store vinduespartier på førstesalen et flot lysindfald til hele huset. Hele indretningen er udtænkt til en børnefamilie med legezoner i stuen og kombineret køkken-alrum og stue med udgang til aftenterrasse bag huset. Desuden er en stor zone på førstesalen bygget med ikke-gennemgående vægge, så det er nemmere at ommøblere rummene, når børnene bliver større.

Pris: 2,5 mio. kr. Arkitekthonorar: 75.000 kr. Rådgivningen omfattede skitseforslag og godkendelse hos myndighederne samt æstetisk delrådgivning.

Rådgivning omfattede

  • Kontakt og idé
  • Skitseforslag
  • Myndighedsprojekt
  • Projektering

Om beregning af priserne

To tilsyneladende ens projekter kan kræve helt forskellig rådgivning og materialer, og dermed have to forskellige slutpriser.

Priserne som bliver vist på siden kan af samme årsag ikke betragtes som endelige, men udelukkende som et udtryk for omkostningerne til netop denne sag.

Du bør derfor altid tale om økonomien i netop dit projekt, med den arkitekt, du er i dialog med.

Rasmus Bak