FØR
FØR
FØR
FØR
FØR
FØR
FØR
FØR
FØR
FØR
FØR
FØR

Projekt

Gennemgribende renovering: murstensvilla i ny balance

Den funktionelle villa
  • Fokus på at udnytte grundens udsigt
  • Optimal udnyttelse af m2
  • Æstetisk sammenhæng

Denne villa fra 1944 trængte både til en arkitektonisk tilbageføring og en planløsning, der kunne følge en moderne hverdag. Målet var en renovering, hvor huset igen fik sit oprindelige udtryk – samtidig med at familien fik mere plads, bedre flow og flere funktioner uden at gå på kompromis med helheden.

Udvendigt blev facaden samlet med genbrugte mursten i samme format som de originale. Karnappen blev nænsomt restaureret og opbygget med murstenskaller mellem nye bjælker, så detaljerne står skarpt, men diskret. Huset fik nye vinduer og døre med hvidmalede karme og olieret mahogni, der giver varme og en tydelig reference til periodens materialer. En tidligere skydedør blev erstattet af en terrassedør i husets stil, og der blev etableret en ekstra terrassedør fra køkkenet, så adgangen til haven blev enkel i hverdagen og samtidig skabte en rolig symmetri i facaden. Garagen blev fastholdt som en integreret del af huset; den oprindelige port blev udbedret for råd, og et linjedræn foran porten sikrer afvanding uden at ændre udtrykket.

Indvendigt var den største værdi for boligejeren en planløsning, der fungerer. Køkkenet blev flyttet til husets bedste rum og åbnet til et lyst køkken-alrum med buet loft, hvor dagslys, udsigt og bevægelse hænger sammen. Køkkenet er tegnet specifikt til huset og udført af snedker: en køkkenø i røget eg med massiv messing bordplade, en rolig højskabsvæg samt indbyggede skabe og skabrum, der samler kaffestation og småapparater, så bordpladerne kan holdes fri. Den tidligere udestue (fra 2001) blev ombygget til egentlig dagligstue med nyt vindue og terrassedøre, sildebensparket i stedet for fliser og justering af bærende væg, så rummet fungerer året rundt. For at understøtte husets tidsånd blev de oprindelige Swedoor-dobbeltdøre udskiftet til genbrugte døre fra 1940’erne – med et håndskåret fiskemotiv i glasset som fin detalje.

Flytningen af køkkenet frigav plads til et ekstra værelse og en ny fordelingsgang med indbyggede skabe. Et genbrugsskab blev indbygget i en hvid ramme med klassisk bue, så opbevaring blev en naturlig del af arkitekturen. Badeværelset i stueplan blev udvidet med bedre bruseniche, og der blev etableret et nyt badeværelse i kælderen som del af en større kælderrenovering. Det løftede husets funktion markant og gav samtidig plads til endnu et kontor, så boligen i dag kan rumme både familieliv og arbejdsdag. Resultatet er en villa renovering, hvor boligejeren fik et mere sammenhængende udtryk, bedre indeklima og en hverdag, der glider lettere – med materialer, der holder og detaljer, der passer til huset. Netop derfor giver en villa renovering her både arkitektonisk sammenhæng og mærkbar værdi i daglig brug.

Bæredygtige tiltag

Dagslys/passiv solvarme
Isolering af tekniske installationer og rør
Genbrug af materialer
Efterisolering

Rådgivning omfattede

  • Interiørdesign
  • Lysdesign
  • Kontakt og idé
  • Skitseforslag
  • Projektering
  • Byggeledelse og -tilsyn

Om beregning af priserne

To tilsyneladende ens projekter kan kræve helt forskellig rådgivning og materialer, og dermed have to forskellige slutpriser.

Priserne som bliver vist på siden kan af samme årsag ikke betragtes som endelige, men udelukkende som et udtryk for omkostningerne til netop denne sag.

Du bør derfor altid tale om økonomien i netop dit projekt, med den arkitekt, du er i dialog med.

FØR: Huset ses fra haven: før istandsættelse Huset set fra haven: Nye vinduer og døre med hvidmalede karme og olieret mahogni genskaber villaens karakter fra 1944. Genbrugte mursten er brugt til at lukke hullet efter en tidligere skydedør. En ny terrassedør fra køkkenet giver nem adgang og symmetri.
FØR: Huset ses fra haven: før istandsættelse
Huset set fra haven: Nye vinduer og døre med hvidmalede karme og olieret mahogni genskaber villaens karakter fra 1944. Genbrugte mursten er brugt til at lukke hullet efter en tidligere skydedør. En ny terrassedør fra køkkenet giver nem adgang og symmetri.
FØR: Karnap før istandsættelse Huset set fra haven: Karnappen er nytænkt med genbrugte mursten og slanke vinduespartier, så rytme og proportioner rammer det oprindelige udtryk.
FØR: Karnap før istandsættelse
Huset set fra haven: Karnappen er nytænkt med genbrugte mursten og slanke vinduespartier, så rytme og proportioner rammer det oprindelige udtryk.
FØR: Facaden mod vejen før istandsættelse: Vinduer og døre havde andre profiler og mål, og åbningerne i teglfacaden stod mere uens. Fotoet viser udgangspunktet før tilbageføring med nye hvidmalede karme, mahognidetaljer og murreparationer. Villaen set fra vejen, hvor vinduer og døre er tilbageført til et mere oprindeligt udtryk. Hvidmalede karme, slanke rammer og mahognidetaljer strammer facaden op, så huset igen læses enkelt, harmonisk og tidstypisk – med respekt for murværkets rytme.
FØR: Facaden mod vejen før istandsættelse: Vinduer og døre havde andre profiler og mål, og åbningerne i teglfacaden stod mere uens. Fotoet viser udgangspunktet før tilbageføring med nye hvidmalede karme, mahognidetaljer og murreparationer.
Villaen set fra vejen, hvor vinduer og døre er tilbageført til et mere oprindeligt udtryk. Hvidmalede karme, slanke rammer og mahognidetaljer strammer facaden op, så huset igen læses enkelt, harmonisk og tidstypisk – med respekt for murværkets rytme.
FØR: Før istandsættelse blev dette rum brugt som dagligstue. Spisestuen får karakter af den bløde, grønne endevæg og den integrerede pejs – med det store vindueskarnap mod haven. Oprindelig var dette rum husets dagligstue.
FØR: Før istandsættelse blev dette rum brugt som dagligstue.
Spisestuen får karakter af den bløde, grønne endevæg og den integrerede pejs – med det store vindueskarnap mod haven. Oprindelig var dette rum husets dagligstue.
FØR: Stuen og så spisestue i baggrunden. Før istandsættelse Her lå den gamle stue og spisestue som nu er lavet om til Køkken-alrum. Læg mærke til det buede loft.
FØR: Stuen og så spisestue i baggrunden. Før istandsættelse
Her lå den gamle stue og spisestue som nu er lavet om til Køkken-alrum. Læg mærke til det buede loft.
FØR: Her ses rummet brugt som spisestue før renoveringen. Køkkenøen placeres tæt på terrassedøren, så madlavning og udeliv hænger sammen. Når døren står åben, trækker haven lys og luft helt ind i rummet.
FØR: Her ses rummet brugt som spisestue før renoveringen.
Køkkenøen placeres tæt på terrassedøren, så madlavning og udeliv hænger sammen. Når døren står åben, trækker haven lys og luft helt ind i rummet.
FØR: Udestue før istandsættelse. Den bærende væg blev vældet så der var mere plads så der kunne være en dagligstue. I 2001 blev der lavet en tilbygning som skulle indeholde en udestue. Ved renoveringen blev den omdannet til en egentlig dagligstue med nyt vindue og terrassedøre, sildebensparket i stedet for fliser og justeret bærende væg - så rummet fungerer året rundt.
FØR: Udestue før istandsættelse. Den bærende væg blev vældet så der var mere plads så der kunne være en dagligstue.
I 2001 blev der lavet en tilbygning som skulle indeholde en udestue. Ved renoveringen blev den omdannet til en egentlig dagligstue med nyt vindue og terrassedøre, sildebensparket i stedet for fliser og justeret bærende væg - så rummet fungerer året rundt.
FØR: Badeværelse før istandsættelse I stueplan blev badeværelset udvidet, så der blev bedre plads til bruseniche og en mere funktionel indretning.
FØR: Badeværelse før istandsættelse
I stueplan blev badeværelset udvidet, så der blev bedre plads til bruseniche og en mere funktionel indretning.
FØR: Gæstetoilet før istandsættelse. Gæstetoilettet er holdt i samme flisevalg og detaljer, så der er tydelig sammenhæng og en sikker, rolig stil.
FØR: Gæstetoilet før istandsættelse.
Gæstetoilettet er holdt i samme flisevalg og detaljer, så der er tydelig sammenhæng og en sikker, rolig stil.
FØR: Værelse før istandsættelse Soveværelse i roligt udtryk med hvidt inventar, sildebensparket og nye vinduer i mahogni, der giver varme og en klar reference til husets tidsånd.
FØR: Værelse før istandsættelse
Soveværelse i roligt udtryk med hvidt inventar, sildebensparket og nye vinduer i mahogni, der giver varme og en klar reference til husets tidsånd.
FØR: Køkken før istandsættelse Børneværelse etableret i det tidligere køkken. Vinylgulvet er udskiftet med nyt fyrtræsgulv, så rummet får samme kvalitet og sammenhæng som resten af huset.
FØR: Køkken før istandsættelse
Børneværelse etableret i det tidligere køkken. Vinylgulvet er udskiftet med nyt fyrtræsgulv, så rummet får samme kvalitet og sammenhæng som resten af huset.
FØR: Efter istandsættelsen kom bryggeset til at være her. Bryggersets inventar er opbygget med forrammeskabe som i  soveværelset. Her blev der bare anvendt IKEA-korpus med specialtilpassede fronter, så indretningen bliver enkel, robust og harmonisk i udtrykket.
FØR: Efter istandsættelsen kom bryggeset til at være her.
Bryggersets inventar er opbygget med forrammeskabe som i soveværelset. Her blev der bare anvendt IKEA-korpus med specialtilpassede fronter, så indretningen bliver enkel, robust og harmonisk i udtrykket.
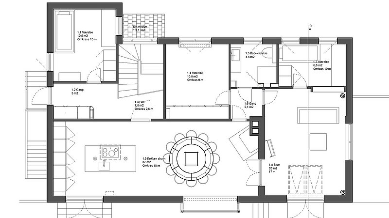
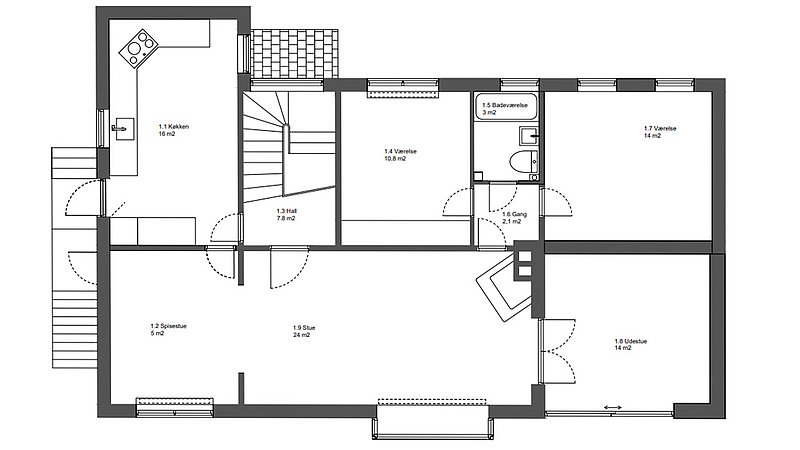
FØR: Plantegning før renovering - stueplan. Plantegning efter renovering - stueplan
FØR: Plantegning før renovering - stueplan.
Plantegning efter renovering - stueplan

Christian Brixval