Projekt

Transformation af firser arkitektur

Typehus fra 80-00'erne
  • Flere rum
  • Optimal udnyttelse af dagslys
  • Sammenhæng med uderum

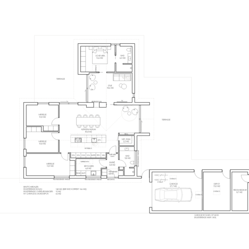
Dette typehus i Dyrup fra 1985, der fik en tilbygning i 1988, står nu over for en gennemgribende transformation. De nuværende ejere ønsker at give boligen et tidssvarende arkitektonisk udtryk samt en lysere og mere funktionel indretning. I dag fremstår huset mørkt og en smule tungt, og et af de væsentligste ønsker er derfor at tilføre mere luft og dagslys. I køkken/alrummet etableres et rytterlys i kip, der lader himmellyset strømme ned i husets midte, mens de eksisterende vinduer udskiftes til gulvhøje egetræsvinduer, som tilfører både varme, stoflighed og generøse lysindfald. Facadens gavle beklædes med lodrette cedertræsbrædder i et elegant listelook. Det samme materiale gentages på den nye garage og det tilhørende depot, hvilket binder bygningerne sammen i en arkitektonisk helhed. De oprindelige røde mursten pudses hvide og skaber en ren, rolig overflade, der står i smuk kontrast til træbeklædningen og vinduernes varme glød.
Tagkonstruktionen udskiftes eller bygges om til saksespær i alrummet, som giver øget loftshøjde og mere volumen i huset. I De øvrige rum bibeholdes eksisterende spær. Det nye tag udføres i matsort tegltagsten, sternlinjerne markeres ligeledes i sort, mens underlister i cedertræ fremhæver kontrasten mellem den hvide facade og styrker samspillet med egetræsvinduerne og de nye gavlbeklædninger. Indvendigt er materialevalget nøje afstemt: Døre og gulve udføres i egetræ, mens betongulvet med synlige sten tilfører en rå karakter, der spiller fint sammen med de varme træelementer. Loftet udføres i hvid gips som skaber en rolig overflade til rummene. Resultatet bliver en harmonisk bolig, hvor gode materialer og masser af lysindfald går hånd i hånd og løfter huset til et nutidigt og indbydende hjem.

Bæredygtige tiltag

Dagslys/passiv solvarme
Lavenergiruder/vinduer
Efterisolering

Rådgivning omfattede

  • Udbud og kontrakter for byggearbejdet
  • Kontakt og idé
  • Skitseforslag
  • Myndighedsprojekt
  • Projektering

Om beregning af priserne

To tilsyneladende ens projekter kan kræve helt forskellig rådgivning og materialer, og dermed have to forskellige slutpriser.

Priserne som bliver vist på siden kan af samme årsag ikke betragtes som endelige, men udelukkende som et udtryk for omkostningerne til netop denne sag.

Du bør derfor altid tale om økonomien i netop dit projekt, med den arkitekt, du er i dialog med.

Jan Smidt Andreasen