Boligreportage

Respekt for ånden fra 60'erne

Troels Lorenzen fik hjælp af sin arkitektbror, da han skulle opgradere det nyindkøbte 60’er hus. En tilbygning gav plads til både et nyt bad og en strømlinet carport. Og fra stue og køkken er der nu en langt bedre sammenhæng med den dejlige terrasse og haven med de høje træer.

I begyndelsen af 1960erne fik lærere ofte stillet et helt nybygget hus til rådighed, når de blev ansat på de nye centralskoler, som afløste landsbyskolerne i stort tal dengang. Sådan et hus købte Troels og Jette Lorenzen for tre år siden.  Det idylliske område tæt på Juelsø ved Silkeborg, hvor huset ligger, var dog oprindeligt et sommerhusområde, og det bærer det stadig præg af. De lave 60er-huse på villavejen er pakket smukt ind i høje nåletræer, og på en varm sommerdag dufter her liftligt af fyr og gran.

Men mens omgivelserne var til topkarakter, var det samme ikke tilfældet med selve huset, da parret så det første gang. Og især Jette havde svært ved at se mulighederne i det. Huset var blevet udvidet med en større tilbygning i 80erne langs hele facaden ud mod vejen. På den side var udtrykket derfor umiskendeligt 1980’erne og noget rodet, mens facaden på havesiden stadig havde det typiske 60er-look med skydedøre ud til terrassen og vinduer langs hele facaden.

Men heldigvis tæller familien også en arkitekt. Allan Lorenzen, der er medlem af Danske BoligArkitekter, blev tilkaldt for at komme med sin vurdering, før lillebror Troels og familie skrev under på slutsedlen. Og han blev begejstret.

- Jeg kunne se, at der bag ”flimmeret” gemte sig et hus med fine linjer og proportioner, som ville være et godt udgangspunkt for en nænsom og økonomisk forsvarlig opgradering, fortæller Allan Lorenzen.

FAKTA OM HUSET

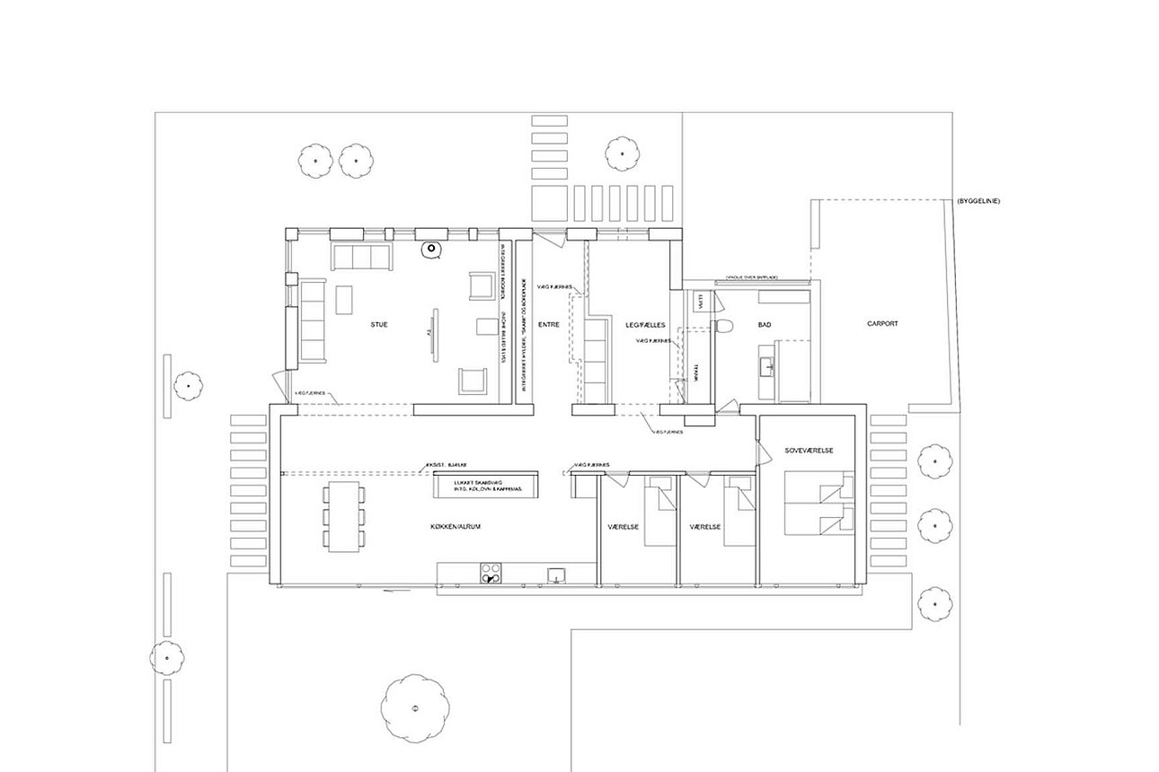
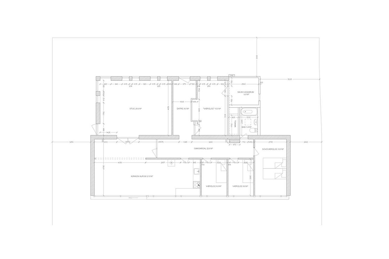
Familien fik: En tilbygning på 25 m2 med nyt badeværelse og carport. Udskiftet gul­vene overalt. Nyt el og nye vvs-installationer. Nye døre i hele huset, inklusive yderdøre. Terrasse i træ samt japansk inspireret forhave med sten.

Proces: Familien Lorenzen fik hjælp af Troels’ bror, Allan Lorenzen, der er arkitekt. Allan leverede teg­ninger og sørgede for, at projektet blev godkendt hos kommunen. Da Troels er tømrer, har han selv stået for alt det håndværksmæssige.

Materialevalg udvendigt: Tilbygning og carport i sortmalet Superwood. Træterrasse i Superwood.

Materialevalg indvendigt:
Egetræsgulve fra Tarkett, køkken- og baderumselementer fra Ikea.

Byggepris:
0,9 mio. kr. inkl. arkitekthonorar

Familien ville gerne bevare så meget som muligt af det oprindelige hus og så ingen grund til at begynde at rive en masse ned, hvis det egentlig fungerede ok. Økonomien skulle jo også hænge sammen.

Pladsproblemet blev klaret med en tilbygning i profilerede træprofiler, der på samme tid både er en kontrast til det oprindelige hus og i fuld harmoni med det. I tilbygningen er indrettet et nyt badeværelse, mens en ny garage i samme smalle træprofiler fuldender billedet. Forskellen mellem før og nu er markant, men ud over tilbygningen er der ikke gjort alverden. Vinduerne er de samme, men nu med sortmalede rammer, hoveddøren er ny, og det samme gælder forhaven med sten og lidt stedsegrønt. Alt har fået et strammere og mere lækkert udtryk, men husets proportioner er bevaret.

Jeg kunne se, at der bag ”flimmeret” gemte sig et hus med fine linjer og proportioner, som ville være et godt udgangspunkt for en nænsom og økonomisk forsvarlig opgradering

Indvendigt blev der åbnet mere op i overgangene mellem entré, køkken, spiseafdeling og opholdsstue. Det før så tætpakkede køkken fremtræder nu enkelt og stilrent. En skabsvæg ud mod gangarealet gemmer på al opbevaring, mens det lange køkkenbord med vask og kogeplader følger facaden ud mod den smukke have med høje træer og en ny terrasse i hele husets længde. Fra bordet har familien nu et dejligt vue til det grønne, mens maden forberedes. Overgangen til uderummet er også gjort langt mere glidende.

Stuen var lidt af en udfordring indretningsmæssigt. Den fungerede simpelt hen ikke i første omgang. Her ”opfandt” Allan Lorenzen en løsning med en rumdeler midt i stuen, hvor fjernsynet nu hænger. Dermed var der skabt et rum i rummet bag rumdeleren, hvor Troels, som er tømrer, har bygget en imponerende 4,60 meter væg til væg i birkefiner med vel nok Jyllands længste hynde.

Det er altid sjovt for en arkitekt at lave den helt store makeover. Men egentlig holder jeg lige så meget af de små renoveringer, hvor man går nænsomt til værks og prøver at få så meget som muligt ud af udgangspunktet

- I starten var vi ikke med på Allans idé, men stuen fungerede ikke før, det gør den nu. Bænken bruger jeg til afstresning, her kan jeg ligge og høre musik. Børnene er også blev vilde med at opholde sig der, fortæller Troels Lorenzen.

Den ”rigtige” sofa blev flyttet til den modsatte væg. Her kan man nu se fjernsyn fra, men man kan også nyde synet til spiseafdeling, køkken og videre ud i haven. Før kiggede man lige ind i naboens mur, eftersom husene på vejen ligger ret tæt på hinanden.

Et minus ved huset er de meget små værelser, som er bygget efter 60ernes normer. Allan Lorenzen foreslog at inddrage noget af køkkenet  og i stedet udvide de to små børneværelser, men familien fravalgte det. I stedet har man netop ved indretningen af det store fællesrum arbejdet med at skabe intime sfærer, hvor man kan være lidt for selv.

Man fravalgte også et bryggers til gengæld for et lille gæste/arbejdsværelse. Også gulvvarme blev fravalgt på grund af økonomi, men de nye elevatorer har rørføring ind i væggen i stedet for i gulvet, og det giver et lettere udtryk.

Rom blev ikke bygget på en dag, sådan er det også med denne families byggeprojekter. Næste større investering bliver med fokus på energiforbruget. Der skal nyt tag på huset og nye energiruder. De oprindelige vinduesrammer fra 60erne skal dog ikke kasseres, men restaureres.

- Jeg bryder mig ikke om blot at smide ting ud. Det strider imod min filosofi at kassere vinduesrammerne, for de fejler ikke noget, men er blevet beskyttet i alle årene af udhænget på huset, siger Troels Lorenzen.
Også hans arkitekt-bror holder på, at det er godt at bevare, når det er muligt.

- Det er altid sjovt for en arkitekt at lave den helt store makeover. Men egentlig holder jeg lige så meget af de små renoveringer, hvor man går nænsomt til værks og prøver at få så meget som muligt ud af udgangspunktet, siger Allan Lorenzen.

Allan Lorenzen

Allan Lorenzen

Få vores BYGGEGUIDE gratis

Modtag konkret hjælp til dit byggeprojekt med vores BYGGEGUIDE, som vi sender med, når du tilmelder dig nyhedsbrevet.

Venligst udfyld en valid e-mail

Tak. Du er tilmeldt nyhedsbrevet.